Willkommen im schönen Angeln !
Eingerahmt von der Flensburger Förde im Norden und der Ostseeküste mit dem Naturschutzgebiet Geltinger Birk im Osten und im Süden von der malerischen Schlei, liegt die Region Angeln. Hier können Sie an frischer Ostseeluft mal so richtig runterkommen. Genießen Sie die unglaubliche Ruhe oder kommen Sie ins Gespräch mit den äußerst tiefenentspannten Angelitern (so nennen sich die Bewohner von Angeln).
Inmitten dieser von sanften Hügeln geprägten Landschaft finden Sie unser kleines Feriendomizil Meyers Ferienhaus mit den 3 Wohneinheiten Lüttdeel, Holtdeel und Olendeel, welche Sie auch gemeinsam buchen können.
Ostseezauber zwischen Apfelbäumen: Willkommen in Meyers Olendeel

Die Ferienhäuser Olendeel, Lüttdeel und Holtdeel befinden sich auf einem 2000 qm großen Gartengrundstück mit alten Obstbäumen. Neben Pflaumen und Mirabellen gibt es verschiedene Apfelsorten wie z.B. der Zitronenapfel und der Holsteiner Cox. Zwischen den Bäumen ist Rasen, der von unserem Mähroboter gepflegt wird.
Der Vorgarten wird von einer Feldsteinmauer eingefasst auf der Rosen und Lavendel blühen. Hinter den Gebäuden wird das Grundstück durch Rhododendren gesäumt.
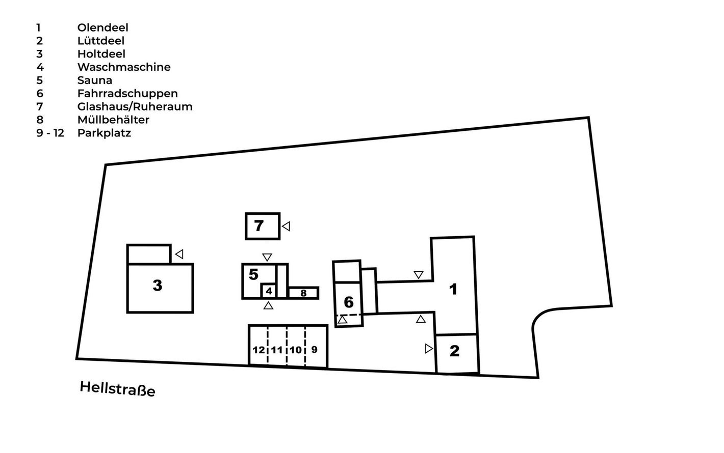
In einem Gebäude zwischen dem Holtdeel und dem Olendeel befindet sich eine Sauna. Auf der Rückseite der Sauna ist in einem separaten Raum eine Waschmaschine untergebracht.
Ferner gehört zum Olendeel auch einen Außendusche mit kaltem und warmem Wasser. Vom Parkplatz mit Stellfläche für vier PKW erreicht man den Fahrradschuppen mit drei Steckdosen zum Aufladen von E-bikes. Hier finden 4 Fahrräder Platz. Zusätzlich stehen zwei ältere Fahrräder für unsere Gäste zur Benutzung bereit.
Neben dem Waschraum befindet sich eine Wallbox zum Aufladen von E-Fahrzeugen. In allen Schlaf und Wohnräumen stehen große Flachbildfernseher zur Verfügung die über Sattelitenempfang verfügen und auch Wlan fähig sind.
Gäste unseres Ferienhauses sind herzlich eingeladen, sich an den zahlreichen Obstbäumen auf dem Grundstück jederzeit nach Belieben zu bedienen.
Erholung Pur: Finnische Sauna mit Gartenblick
Unsere finnische Sauna mit modernem Elektroofen bietet Platz für bis zu sechs Personen – der perfekte Ort für gemeinsame Entspannungsmomente.
Der angrenzende Vorraum mit Fußbodenheizung, ausgestattet mit einem Fenster zum Garten und einer gemütlichen Holzbank, lädt zum Verweilen vor oder nach dem Saunagang ein.
Direkt an die Sauna angrenzend, durch eine Mauer diskret getrennt, finden Sie eine erfrischende Dusche und einen Kneippschlauch für das belebende Kaltwassererlebnis. Diese Wohlfühloase steht allen unseren Gästen zur freien Verfügung.
Und für die Momente der Ruhe danach? Unser charmantes, umfunktioniertes Gewächshaus im Obstgarten bietet den idealen Rückzugsort, um die Seele baumeln zu lassen.
Lageplan Meyers Ferienhaus

Das sagen unsere Gäste
„Waren beruflich dort, das Haus ist top ausgestattet und sehr sauber. Es ist ruhig und es gibt einen Parkplatz vorm Haus sowie einen Garten.“
Isabella
„Wir haben beide Ferienwohnungen zusammen gebucht, da wir uns mit Freunden treffen wollten, um gemeinsam zu kochen, Wein zu testen, ausgiebig zu reden und die Natur zu genießen.
Es war ein herrliches langes Wochenende. Die Küche ist sehr gut ausgestattet und es gab reichlich Platz in dem so liebevoll restaurierten Feriendomizil mit gemütlichen Betten und einem herrlichen Ofen, der uns nach langen Spaziergängen in der herbstlichen Natur schön aufgewärmt hat. Gerne wären wir noch länger geblieben. Also auch in der ungemütlichen Jahreszeit kann man hier einen entspannten und gemütlichen Urlaub verbringen. Wir kommen sehr gerne wieder!“
Marion Brosig
„Sehr schönes Haus in ruhiger Lage. Perfekt um mit der Familie die Landluft zu genießen und um mal aus der Stadt rauszukommen.“